29.10.2025
Öffentlichkeitsbeteiligung Aufstellung des Bebauungsplans „Römerstraße Spielplatz“
Bekanntmachung
Vollzug des Baugesetzbuches (BauGB)
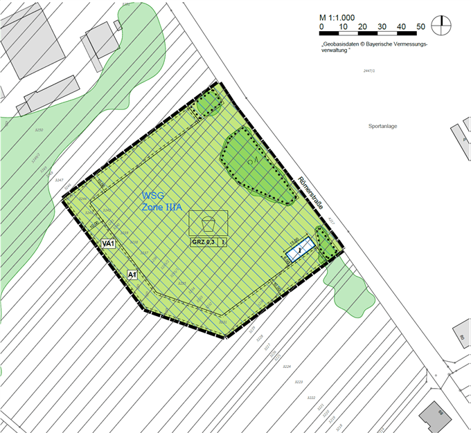
Aufstellung des Bebauungsplans „Römerstraße Spielplatz“
Öffentlichkeitsbeteiligung nach § 3 Abs. 2 Satz 1 BauGB
Der Gemeinderat der Gemeinde Niedernberg hat in seiner Sitzung vom 18.02.2025 die Aufstellung des Bebauungsplans „Römerstraße Spielplatz“ beschlossen. Durch die Aufstellung des Bebauungsplans soll die Errichtung eines Spielplatzes ermöglicht werden.
Der Bau- und Umweltausschuss der Gemeinde Niedernberg hat in der Sitzung vom 21.10.2025 den Entwurf des Bebauungsplans „Römerstraße Spielplatz“ gebilligt.
Der vom Büro PlanerFM GbR ausgearbeitete Entwurf des Bebauungsplans „Römerstraße Spielplatz“ und die Begründung werden hier vom 10.11.2025 bis einschließlich 12.12.2025 veröffentlicht.
Zusätzlich zur Veröffentlichung im Internet werden folgende andere leicht zu erreichende Zugangsmöglichkeiten vorgehalten: Die Unterlagen können in der Gemeindeverwaltung (Rathaus, Hauptstraße 54, 63843 Niedernberg, Zimmer OG03) während der allgemeinen Dienststunden (Montag bis Freitag von 08:00 Uhr bis 12:00 Uhr und Montag bis Donnerstag von 14:30 Uhr bis 16:00 Uhr) öffentlich eingesehen werden.
Stellungnahmen sollen während dieser Frist elektronisch an bauamt@niedernberg.de und bei Bedarf in Textform an Gemeinde Niedernberg, Hauptstraße 54, 63843 Niedernberg oder während der Dienststunden zur Niederschrift abgegeben werden.
Nicht fristgerecht abgegebene Stellungnahmen können bei der Beschlussfassung über die Aufstellung des Bebauungsplans „Römerstraße Spielplatz“ unberücksichtigt bleiben, wenn die Gemeinde den Inhalt nicht kannte und nicht hätte kennen müssen und deren Inhalt für die Rechtmäßigkeit Entwurf der Aufstellung des Bebauungsplans „Römerstraße Spielplatz“ nicht von Bedeutung ist.
Folgende Arten umweltbezogener Informationen sind verfügbar:
- Artenschutzrechtliche Beurteilung (ASB) -Potenzialabschätzung- für den Bebauungsplan "Römerstraße Spielplatz“, ausgearbeitet von Topoverde Landschaftsarchitektur am 17.06.2025
- Umweltbericht mit Eingriffs-/Ausgleichsermittlung für den Bebauungsplan „Römerstraße Spielplatz“, ausgearbeitet von Topoverde Landschaftsarchitektur am 22.07.2025
Der Inhalt dieser Bekanntmachung und die nach § 3 Abs. 2 Satz 1 BauGB zu veröffentlichenden Unterlagen sind auch über das zentrale Internetportal des Landes zugänglich.
Datenschutz: Die Verarbeitung personenbezogener Daten erfolgt auf der Grundlage der Art. 6 Abs. 1 Buchstabe e DSGVO i. V. m. § 3 BauGB und dem BayDSG. Sofern Sie Ihre Stellungnahme ohne Absenderabgaben abgeben, erhalten Sie keine Mitteilung über das Ergebnis der Prüfung. Weitere Informationen entnehmen Sie bitte dem Formblatt „Datenschutzrechtliche Informationspflichten im Bauleitplanverfahren“ das ebenfalls öffentlich ausliegt.

Gemeinde Niedernberg
Niedernberg, 29.10.2025
Ralf Sendelbach
Erster Bürgermeister
Kategorien: Gemeinde & Bürger, Gemeinde & Bürger - Bauleitverfahren
Niedernberg